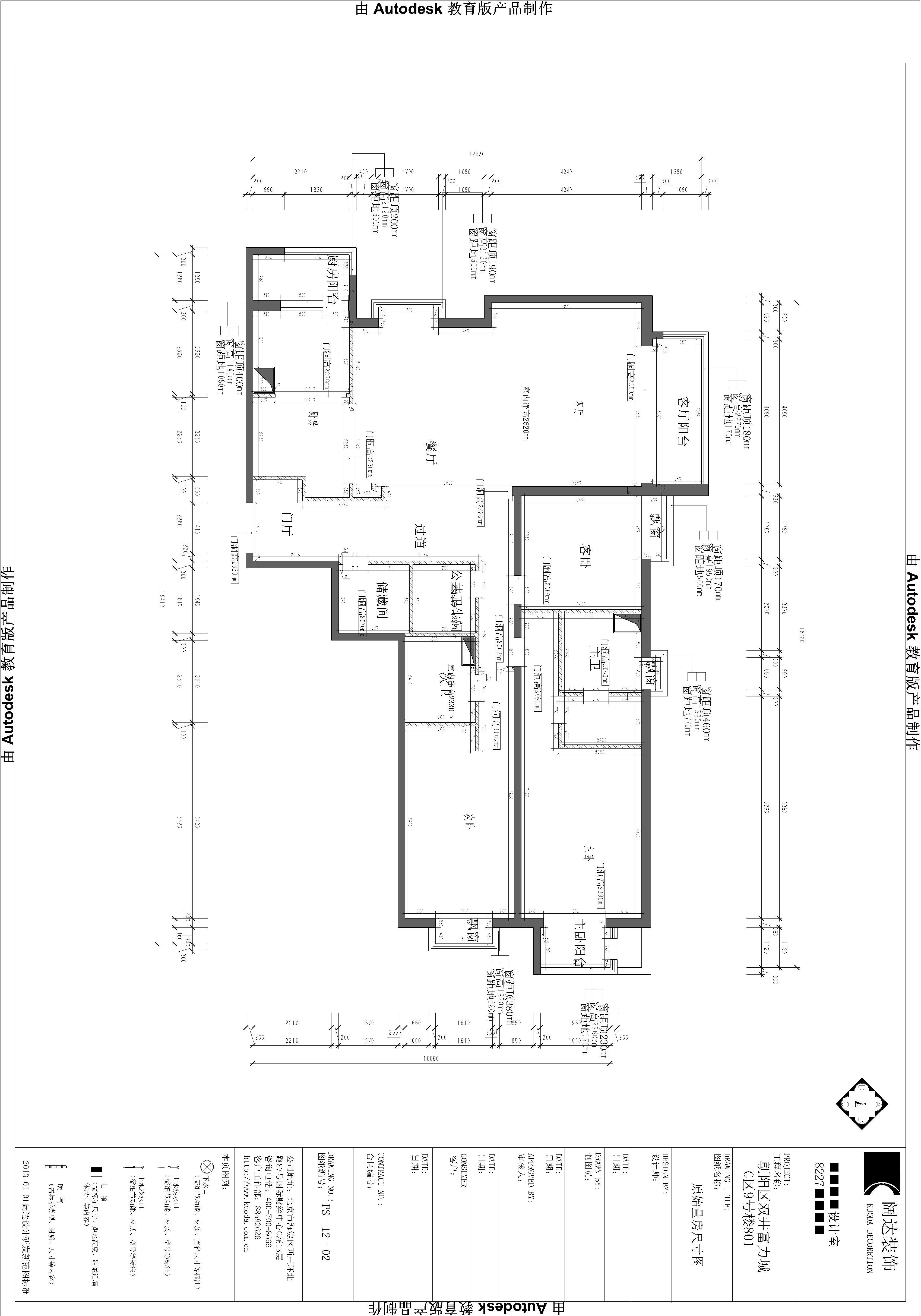
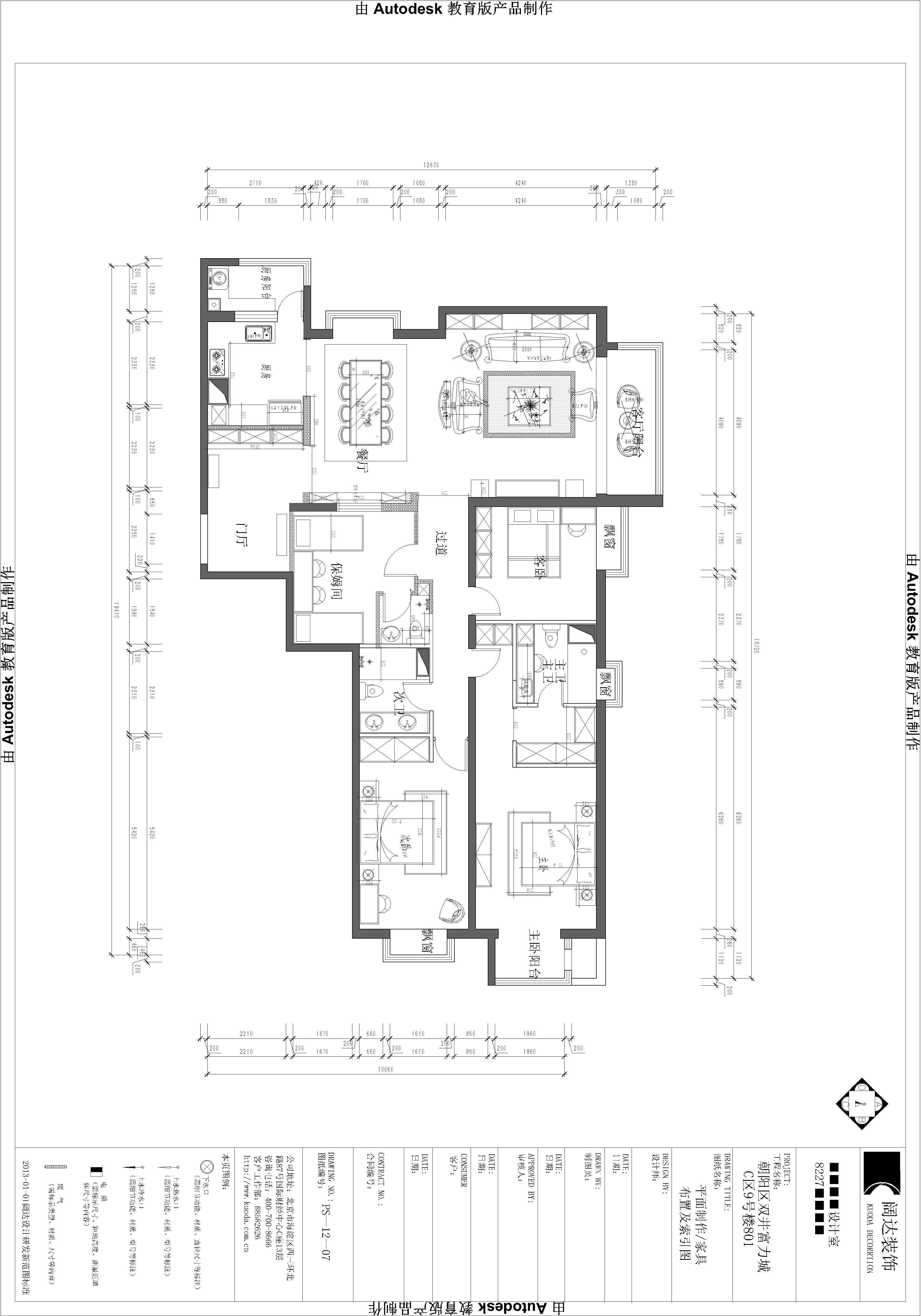
富力城
更新時間:2017-05-31
| 設計風格 | 時尚新古典 | 戶型案例 | 4室3衛1廳 | 案例面積 | 201 |
|---|---|---|---|---|---|
| 樓盤名稱 | 富力城 | 所在城市 | 北京 | 案例造價 | 12萬(不含主材) |
| 設計師 | 李瑞 | ||||

案例說明:
本案例整體風格定位于時尚新古典風格,意在營造時尚,前衛,純凈,奢適的自然空間。生活在繁雜多變的世界里已是煩擾不休, 而簡單,自然的生活空間卻能讓人身心舒暢,感到寧靜和安逸。藉著室內空間的解構和重組,使整個居室空間實現‘自然’‘人’‘居’的和諧統一,使我們感動于家的溫馨浪漫。讓我們在紛擾的現實生活中找到平衡,締造出一個令人心馳神往的寫意空間。同風格案例:更多>>
同面積案例:














京公網安備 11010802032436號